Tin tức
Căn hộ Eco Xuân Lái Thiêu – Bình Dương
Ngày Đăng : Tuesday, July 30, 2019
Căn hộ Eco Xuân Lái Thiêu – Bình Dương
Căn hộ Eco Xuân là dự án chung cư ở Bình Dương đầu tư “ tập đoàn SP Setia Berhad Malaysia”.
Tại vị trí mặt tiền Quốc lộ 13 hệ thống tiện ích phong phú trong bán kính 500m. Dự án Eco Xuân Bình Dương là không chỉ là nơi bạn sinh sống hoàn hảo bên cạnh đó là kênh đầu tư hấp dẫn đáp ứng mọi nhu cầu cần thiết của mọi người.
TỔNG QUAN DỰ ÁN ECO XUÂN BÌNH DƯƠNG
- Tên thương mại: Căn hộ ECOXUÂN
- Vi trí: Quốc Lộ 13, Lái Thiêu, Thuận An, Bình Dương
- Chủ đầu tư: Tập Đoàn SP Setia Malaysia
- Đơn vị thi công: Công ty CP Xây Dựng FBV (Block A&C)
- Đơn vị quản lý: Savills Việt Nam
- Tổng diện tích đất: 10.84 hecta, Mật độ xây dựng: 35%
- Quy mô: 3 block A, B và C cao 23 tầng và 1 Block Trung tâm mua sắm 3 tầng
- Tổng số căn hộ: 740 căn. 11 căn hộ/ sàn, 4 thang máy
- Diện tích căn hộ: 48 – 88m2 (1 đến 3 phòng ngủ)
- Bàn giao: Quý 3/2019 (block B), Block A&C (Quý 1.2021)
- Hình thức sở hữu: Sổ hồng vĩnh viễn
| 
 | 
Dự án Ecoxuan, cư dân có thể kết nối nhanh chóng về TPHCM qua tuyến Quốc lộ 13 và cầu Phú Long.
Dự án Ecoxuan mang lại nhiều tiện ích phục vụ đời sống thường ngày của cư dân như hệ thống các trung tâm vui chơi mua sắm, siêu thị cung cấp phong phú các dịch vụ ăn uống, mua sắm và vui chơi giải trí.
- Chỉ 2 phút tới bệnh viện quốc tế Miền Đông
- 5 phút tới sân Golf Sông Bé
- 3 phút tới Lotte Bình Dương + Siêu thị Eon + Siêu thị Metro,…
Bên cạnh đó, dân cư nơi đây rất dễ dàng tiếp cận:
- Dịch vụ chăm sóc sức khỏe của nhiều bệnh viện lớn
- hệ thống trường học các cấp.
TIỆN ÍCH CĂN HỘ ECOXUAN BÌNH DƯƠNG
Cư dân sống tại căn hộ Eco Xuân sẽ tận hưởng cuộc sống thoải mái với 25 đại tiện ích và đẳng cấp mà không cần phải đi đâu xa. Cuộc sống cảm thấy hài lòng và trọn vẹn.
CUỘC SỐNG TRONG MƠ
Căn hộ Ecoxuan có lẽ không chỉ là nơi để ở, ngoài ra mang lại cảm giác cho mọi người cuộc sống đầy đủ tận hưởng mọi thứ ai cũng hằng ao ước.
Tất cả căn hộ Eco Xuân thiết kế đều có 1 ban công riêng và 1 lôgia để đón nhận tối đa ánh sáng tự nhiên, mang không khí trong lành và luồng gió mát thổi vào bên trong căn hộ.
- Mang lại cảm giác thoải mái giúp cho chủ nhân căn hộ có thể hoàn toàn trút bỏ những mệt nhọc khi trở về nhà.
Hệ thống tiện ích xung quanh dự án Eco Xuân
TIÊU CHUẨN SỐNG CHUẨN MỰC
- Vật liệu hoàn thiện thân thiện môi trường-tốt cho sức khỏe.
- Công nghệ xử lý nước thải, rác thải, ô nhiễm bụi, tạp chất.
- Mật độ phủ xanh gần 50%
- Hệ thống trung tâm thương mại cao cấp, hiện đại.
- Hệ thống phòng tập Gym, Spa với đầy đủ trang thiết bị luyện tập cao nhất.
- Khu vui chơi cho trẻ nhỏ, đường dạo bộ quanh dự án.
- Phòng khám hiện đại cung cấp cho cư dân dịch vụ chăm sóc sức khỏe tốt nhất cho mọi lứa tuổi.
- Compound an ninh 3 lớp toàn dự án giám sát 24/24. Đảm bảo an toàn, an ninh và riêng tư tuyệt đối cho cư dân.
Trọng nội khu khuôn viên Ecoxuan Bình Dương tập trung những tiện ích như :
- Hồ bơi dành cho người lớn
- Hồ bơi dành cho trẻ em
- Bể nước mát xa
- Khu vui chơi trẻ em
- Khu vườn tản bộ đem đến sự tiện lợi cho dân cư
- Câu lạc bộ nội khu với phòng tập gym được trang bị đầy đủ và được kết nối với lối vào từ khu quảng trường này nhằm phục vụ cho nhu cầu giải trí và chăm sóc sức khỏe cho cư dân, mang lại cuộc sống luôn tràn ngập năng lượng.
| 
 Hình ảnh thực tế trong khuôn viên dự án Eco Xuân | 
Ecoxuan Sky Residences mang đến cho cư dân sự tiện nghi, thoải mái và một không gian sống hiện đại, chủ đầu tư đã chăm chút tỉ mỉ những tiện ích phong phú và đa dạng, cư dân eco xuân sẽ không cần phải đi đâu xa bởi mọi tiện ích đều có ngay gần nhà.
Dự án Eco Xuân có 3 phân khu rõ rệt nằm trong tổng thể 10.84 hecta được cấp phép đầu tư: Khu Biệt Thự Liên kế – Khu Căn Hộ Chung Cư 23 tầng – Khu Mua Sắm 3 tầng
- Điều này giải thích cho việc Chủ đầu tư chọn gửi thông điệp “nhà lý tưởng-hưởng an nhàn”để đón chào những cư dân tương lai của dự án.
THIẾT KẾ CĂN HỘ ECO XUÂN BÌNH DƯƠNG
Trong thiết kế căn hộ Ecoxuan Sky Residences:
- 3 tòa tháp cung cấp những không gian sống được phân bổ tốt, tràn đầy ánh sáng tự nhiên.
- Khu vực đỗ xe hơi được thiết kế xung quanh khu vực tầng một để có thể đi thẳng vào cả 3 tòa tháp.
- Mỗi tòa tháp cũng có hai tầng cho khu vực đậu xe gắn máy.
Dự án Eco Xuân có rất nhiều loại căn hộ và được thiết kế đón gió tự nhiên thoáng mát và ánh sáng trời với 1 ban công và 1 logia, cửa sổ rộng rãi cân đối. Phía trước các tòa tháp là những hàng cây tạo cảm giác gần gũi với thiên nhiên.
Thiết kế căn hộ Eco xuân Lái Thiêu đem đến cho khách hàng nhiều sự lựa chọn căn hộ từ 1 đến 3 phòng ngủ với thiết kế hiện đại và tinh tế. Dưới đây là các loại diện tích của Căn hộ eco xuân Block B:
- Loại 1 phòng ngủ: 58.99m2
- Loại 2 phòng ngủ: 74.37 m2
- Loại 3 phòng ngủ: 83.36 m2 – 84.62 m2 – 84.84 m2
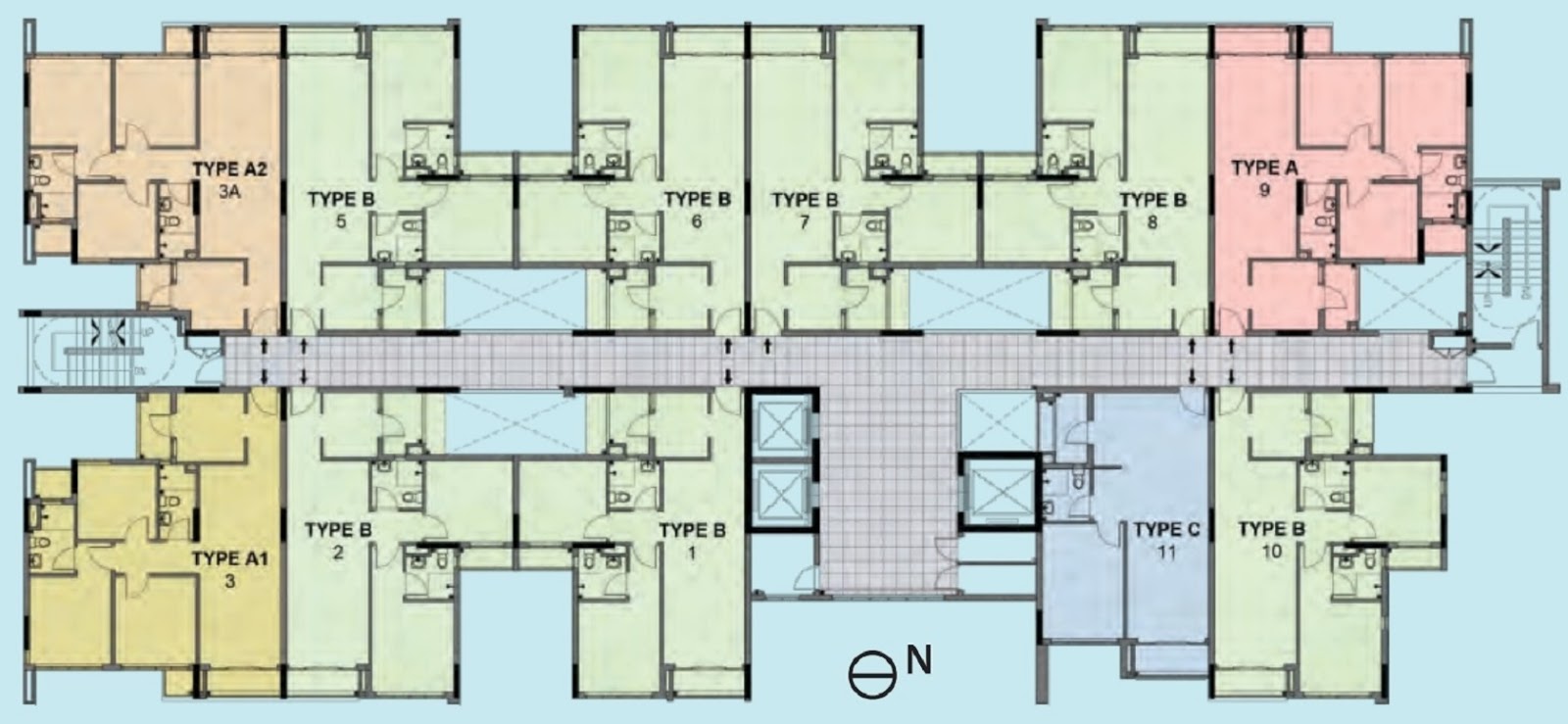
| Mặt bằng tầng điển hình tầng 4-23 block Sky B dự án Eco Xuân | 
| Mặt Bằng Trệt tổng thể khu căn hộ eco xuân Bình Dương | 
LIÊN HỆ ĐẶT MUA CĂN HỘ ECO XUÂN BÌNH DƯƠNG
Ecoxuan Sky Residences là dự án trọng điểm thứ 2 của tập đoàn Sp Setia tại Bình Dương, có rất nhiều khách hàng yêu thích.
- Bởi vì đó là một nơi bình yên vị trí đẹp, tiện ích sống đúng chất sinh thái nghỉ dưỡng, nhu cầu thuê của khách nước ngoài tại khu vực cũng rất lớn.
Thống kê của chủ đầu tư dự án, hơn 60% lượng khách hàng quan tâm chọn mua Block B Eco Xuân Bình Dương đều có hộ khẩu hoặc tạm trú, làm việc tại địa bàn TP Hồ Chí Minh, điều đó càng khẳng định giá trị tiềm tàng từ vị trí đắc địa của dự án này.
Dự án Eco xuân được bảo lãnh và tài trợ vốn bởi Ngân hàng BIDV và NCB sẽ mang đến cho khách hàng nhiều cơ hội tiếp cận các gói ưu đãi lãi suất tốt và ổn định nhất thị trường hiện nay.
Pháp lý dự án Eco Xuân đã hoàn chỉnh, Chủ đầu tư cũng đã công bố PHƯƠNG THỨC THANH TOÁN cụ thể cho dự án này, theo đó, khách hàng chỉ thanh toán theo tiến độ xây dựng eco xuân đến 45% là nhận bàn giao nhà.
NHỮNG HÌNH ẢNH THỰC TẾ TẠI DỰ ÁN ECO XUÂN
Ecoxuan Sky Residences là một phần trong dự án khu đô thị sinh thái Eco Xuân 10.84ha. Biệt thự, nhà phố đã được hoàn chỉnh và đưa vào sử dụng với nhiều tiện ích khép kín, có đầy đủ khu vui chơi, công viên và cảnh quan cây xanh phủ kín mát mẻ, trong lành.
#can hộ eco xuân quốc lộ 13


.jpg)












